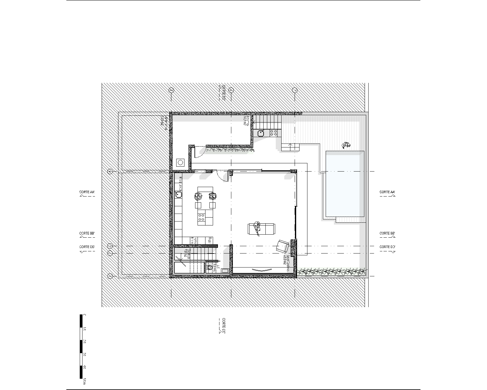
Desenvolvimento de raiz de projeto para vivenda situada na zona de Sinta, tipologia T3 que tem como principal desafio o facto de estar inserida em lotes estreitos e contíguos. Para o efeito, a solução a destacar foi a adoção de uma fachada principal opaca para garantir a privacidade e a segurança dos proprietários, concentrando-se os espaços sociais e privados na fachada contrária por forma a assegurar luminosidade das divisões e beneficiar de uma vista única para o Parque Natural Sintra-Cascais.
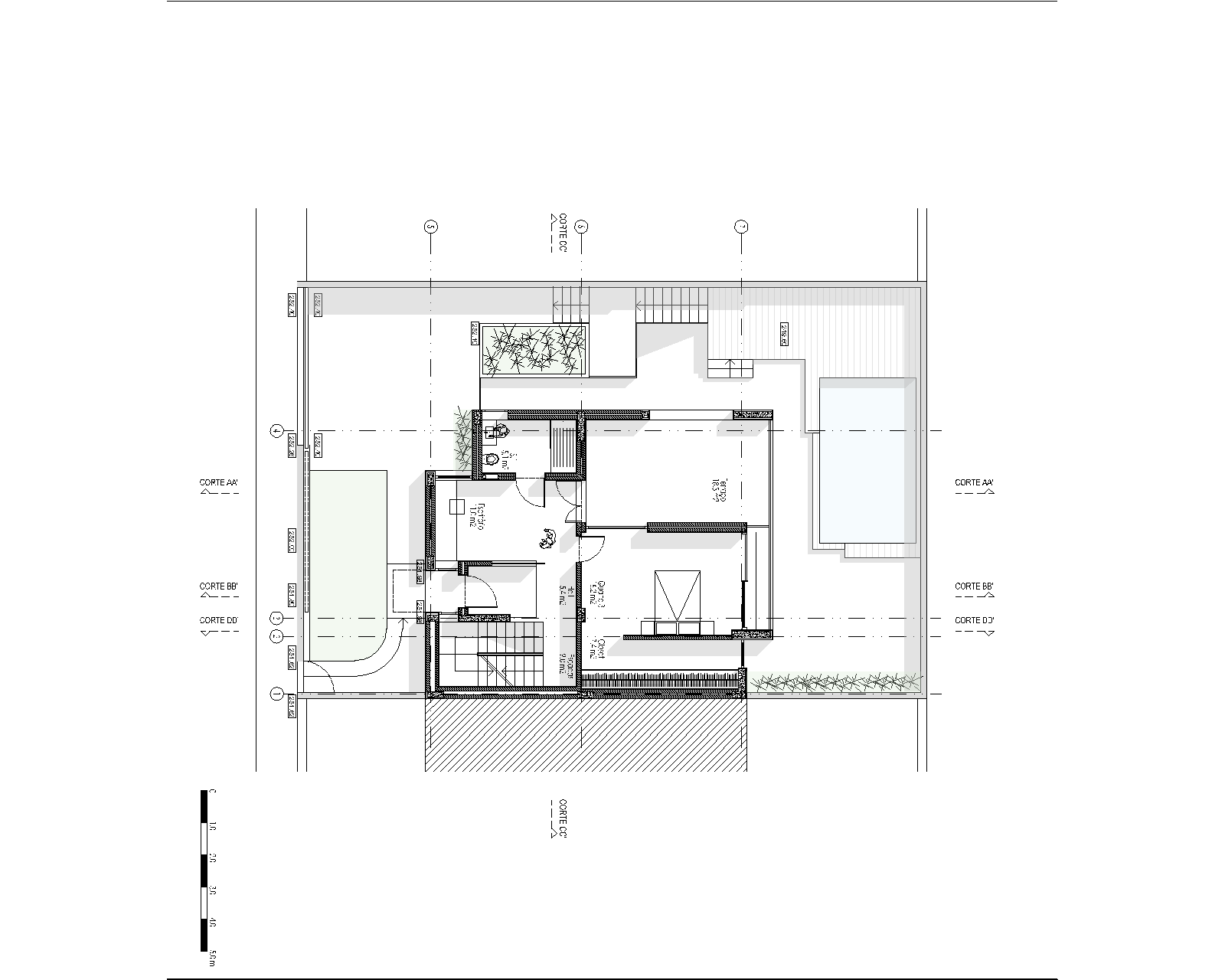
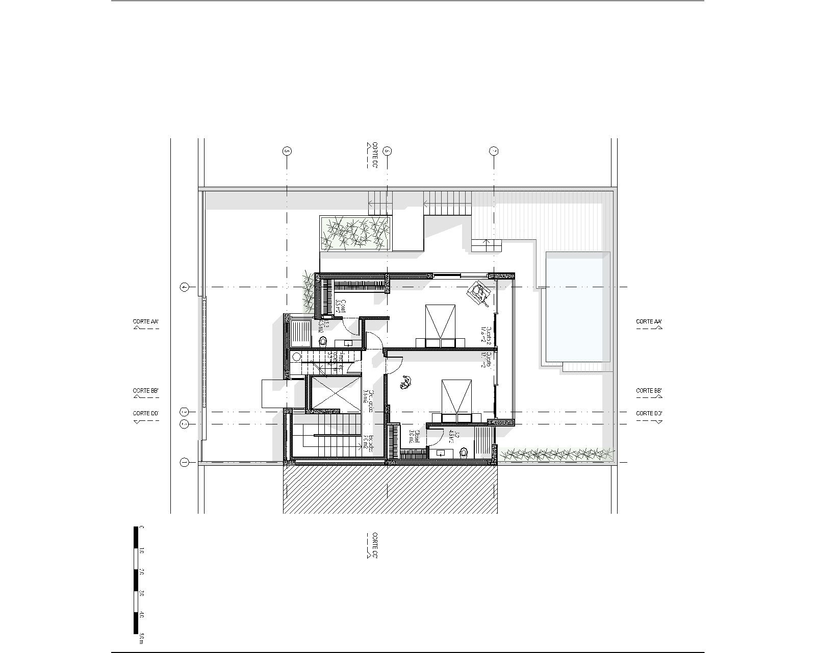
Destaca-se a concentração dos espaços sociais num nível abaixo do solo, contíguo à área exterior, para com isso conseguir uma continuidade entre as áreas destinadas ao convívio. Os dois pisos acima do nível do solo congregam todas as divisões privadas, como garante de uma maior privacidade e isolamento para a restante habitação.
Em curso
Sintra, Portugal
Projeto